Montford Estate

House Plan

213m²
Montford House Plan
213m² 4 2 2 2

Project Details
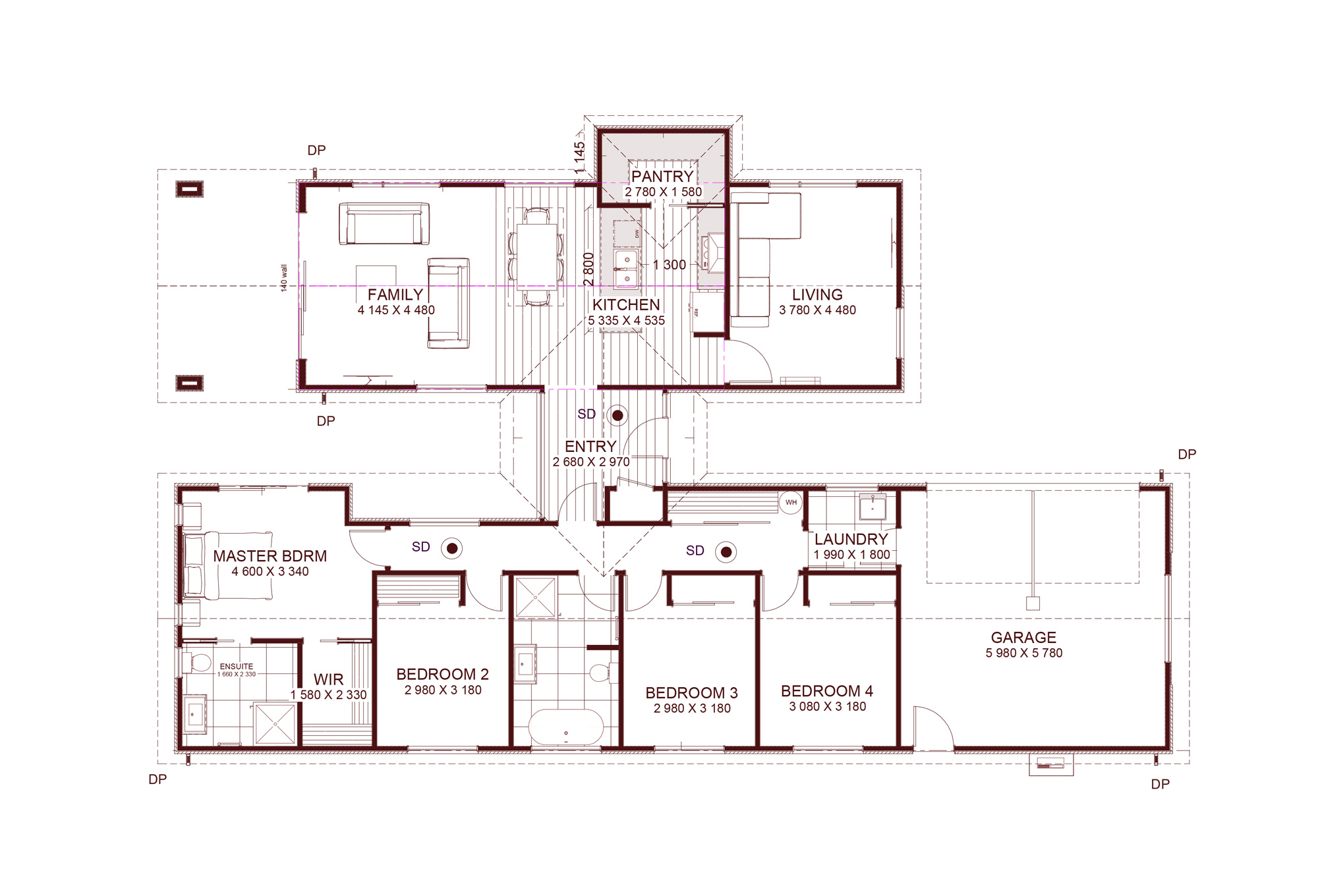
Welcome to a contemporary four-bedroom home plan that combines style and practicality. This well-designed residence features two chic bathrooms with tiled finishes and a skylight in the ensuite for a touch of luxury.

Cedar gables enhance the exterior, adding character to the facade. Inside you’ll find a walk-in pantry for culinary enthusiasts and a separate laundry for convenience. Enjoy versatile living spaces with two living areas and indoor-outdoor flow to the alfresco area. The package is complete with a double garage providing secure parking and additional storage.

Features

  • Bosch appliances  
  • Quality Bathroom Fixtures 
  • Free standing bath  
  • Heat pump  
  • Attic storage and ladder 
  • Built in joinery to all wardrobes  
  • Generous kitchen allowance  
  • Digital front door lock 
  • 70m² plain concrete and driveway crossing  
  • 10 year master builders guarantee 
  • 12 months maintenance 

Step into your new home

Embark on a journey towards your dream home with KAD Build. Our free consultation is your first step towards building a new home that reflects your vision and lifestyle.