Coopers Creek

House Plan

251m²
Coopers Creek 4 bed plan by KAD Build
251m² 4 2 3 2

Project Details

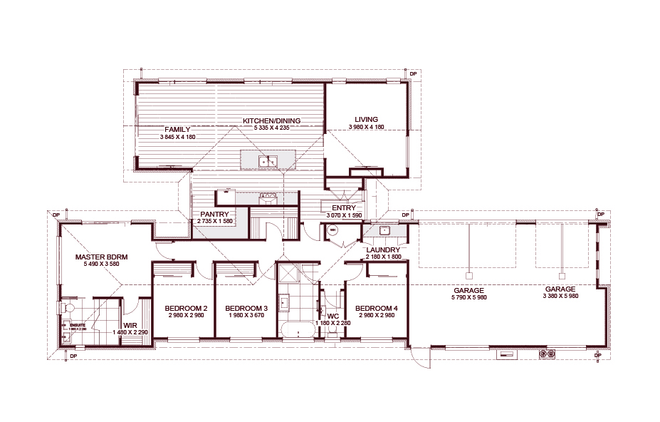
This modern four-bedroom, two-bathroom home blends smart design with everyday functionality. Its open-plan kitchen, dining, and living area forms a social hub, featuring a walk-in pantry and island bench, while a separate lounge is ideal as a media or rumpus room.

The spacious master suite includes a walk-in wardrobe and ensuite, complemented by three additional bedrooms, a family bathroom, and a practical laundry adjoining the garage.

The three-car garage adds extra storage and flexibility – perfect for growing families, hobbies, or weekend adventures.

Features

  • Bosch appliances
  • Quality Bathroom Fixtures
  • Free standing bath
  • Heat pump
  • Attic storage and ladder
  • Built in joinery to all wardrobes
  • Generous kitchen allowance
  • Digital front door lock
  • 70m² plain concrete and driveway crossing
  • 10 year master builders guarantee
  • 12 months maintenance

Step into your new home

Embark on a journey towards your dream home with KAD Build. Our free consultation is your first step towards building a new home that reflects your vision and lifestyle.